
2,110 SqFt
2,110 SqFt
Key Details
Property Type Commercial
Sub Type Office
Listing Status Active
Purchase Type For Sale
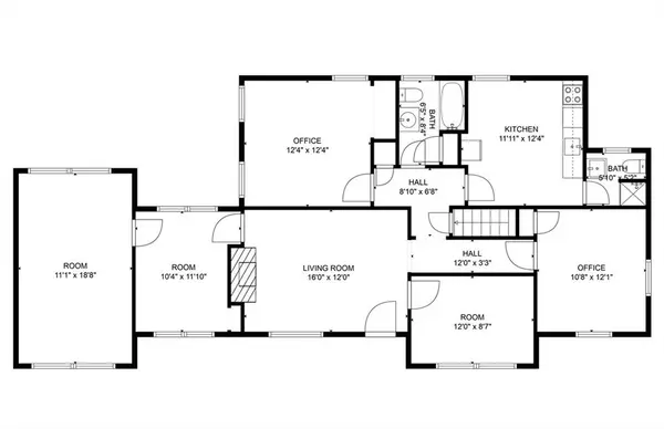
Square Footage 2,110 sqft
Price per Sqft $260
MLS Listing ID 7557068
Construction Status Fixer
HOA Y/N No
Year Built 1946
Annual Tax Amount $12,720
Tax Year 2024
Lot Size 0.415 Acres
Acres 0.4155
Property Sub-Type Office
Source First Multiple Listing Service
Property Description
Location
State GA
County Dekalb
Zoning C-1
Lake Name None
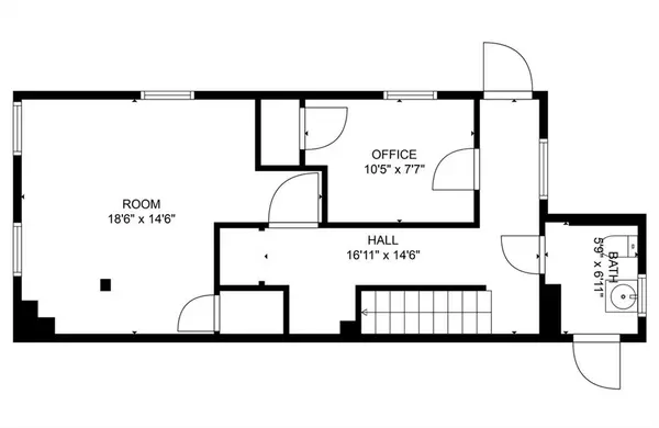
Rooms
Other Rooms None
Basement Daylight, Driveway Access, Exterior Entry, Finished, Finished Bath, Walk-Out Access
Interior
Interior Features Reception Area, Restrooms
Heating Central, Forced Air
Cooling Central Air
Flooring Carpet, Hardwood
Equipment None
Window Features None
Exterior
Parking Features Parking Lot
Fence None
Utilities Available Cable Available, Electricity Available, Natural Gas Available, Phone Available, Sewer Available, Water Available
Waterfront Description None
View Y/N Yes
View City
Roof Type Other
Street Surface Asphalt
Accessibility None
Handicap Access None
Total Parking Spaces 12
Private Pool false
Building
Lot Description Free Standing
Story Two
Foundation Block
Water Public
Level or Stories Two
Structure Type Vinyl Siding
Construction Status Fixer
Others
Senior Community no
Tax ID 18 103 03 018









